Elegante edificio de apartamentos de cuatro dormitorios

133 m² de área total / 1432 ft² 1 piso 4 dormitorios 2 baños
Elegante edificio de apartamentos de cuatro dormitorios
Click to view

Descripción

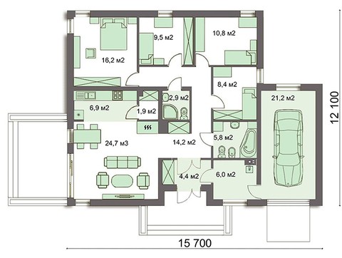
Stylish four-bedroom apartment building<br data-rich-text-line-break="true" />Número de plantas: 1<br data-rich-text-line-break="true" />Área total: 132.90 m2<br data-rich-text-line-break="true" />Área habitable: 105.70 m2<br data-rich-text-line-break="true" />Altura de la casa: 7.20 m<br data-rich-text-line-break="true" />Altura del techo: 2.80 m<br data-rich-text-line-break="true" />Ángulo del techo: 30 °<br data-rich-text-line-break="true" />Área del techo: 239.50 m2<br data-rich-text-line-break="true" />Volumen: 275.00 m3<br data-rich-text-line-break="true" />Número de dormitorios: 4<br data-rich-text-line-break="true" />Número de baños: 2<br data-rich-text-line-break="true" />Garaje: Garage for one car<br data-rich-text-line-break="true" />Tamaño mínimo del terreno (largo): 20.10 m<br data-rich-text-line-break="true" />Tamaño mínimo del terreno (ancho): 23.70 m<br data-rich-text-line-break="true" />Área construida: 173.5 m2<br data-rich-text-line-break="true" />Materiales:<br data-rich-text-line-break="true" />Paredes: aerated concrete, ceramic blocks<br data-rich-text-line-break="true" />Ceiling: on wooden beams<br data-rich-text-line-break="true" />Roofing: ceramic tile, metal tile, cement-sand tile<br data-rich-text-line-break="true" />Foundation: monolithic tape

¿Te interesa este plano?

Contáctanos para obtener los planos completos, un presupuesto de construcción o adaptar este diseño a tu terreno y necesidades.

Solicitar más información

Galería de visualizaciones