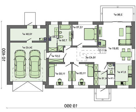
Proyecto de casa de una planta con garaje para dos coches

235 m² de área total / 2530 ft² 1 piso 3 dormitorios 2 baños
Proyecto de casa de una planta con garaje para dos coches
Click to view

Descripción

The project of a one-story cottage with a garage for two cars Número de plantas: 1 Área total: 235.04 m2 Área habitable: 65.49 m2 Altura de la casa: 7.90 m Altura del techo: 2.80 m Ángulo del techo: 32 ° Área del techo: 308.00 m2 Volumen: 445.30 m3 Número de dormitorios: 3 Número de baños: 2 Garaje: Two-car garage Tamaño mínimo del terreno (largo): 27.50 m Tamaño mínimo del terreno (ancho): 18.50 m Materiales: Paredes: aerated concrete, ceramic blocks Overlap: monolithic overlap Roofing: metal tile, ceramic tile, bitumen Foundation: monolithic tape

¿Te interesa este plano?

Contáctanos para obtener los planos completos, un presupuesto de construcción o adaptar este diseño a tu terreno y necesidades.

Solicitar más información

Galería de visualizaciones