Proyecto de casa grande con ático y garaje para dos coches

230 m² de área total / 2476 ft² 1 piso 4 dormitorios 2 baños
Proyecto de casa grande con ático y garaje para dos coches
Click to view

Descripción

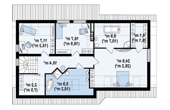
The project of a large house with an attic, a garage for two cars<br data-rich-text-line-break="true" />Número de plantas: 2<br data-rich-text-line-break="true" />Área total: 230.00 m2<br data-rich-text-line-break="true" />Área habitable: 169.80 m2<br data-rich-text-line-break="true" />Altura de la casa: 7.50 m<br data-rich-text-line-break="true" />Altura del techo: 2.80 m<br data-rich-text-line-break="true" />Ángulo del techo: 40 °<br data-rich-text-line-break="true" />Número de dormitorios: 4<br data-rich-text-line-break="true" />Número de baños: 2<br data-rich-text-line-break="true" />Garaje: Two-car garage<br data-rich-text-line-break="true" />Tamaño mínimo del terreno (largo): 24.08 m<br data-rich-text-line-break="true" />Tamaño mínimo del terreno (ancho): 18.58 m<br data-rich-text-line-break="true" />Materiales:<br data-rich-text-line-break="true" />Paredes: aerated concrete, ceramic blocks<br data-rich-text-line-break="true" />Overlap: monolithic overlap<br data-rich-text-line-break="true" />Roofing: ceramic tile, metal tile, cement-sand tile<br data-rich-text-line-break="true" />Foundation: monolithic tape

¿Te interesa este plano?

Contáctanos para obtener los planos completos, un presupuesto de construcción o adaptar este diseño a tu terreno y necesidades.

Solicitar más información

Galería de visualizaciones