Casa moderna de dos plantas en estilo clásico

227 m² de área total / 2443 ft² 2 pisos 3 dormitorios 3 baños
Casa moderna de dos plantas en estilo clásico
Click to view

Descripción

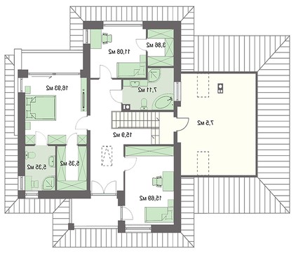
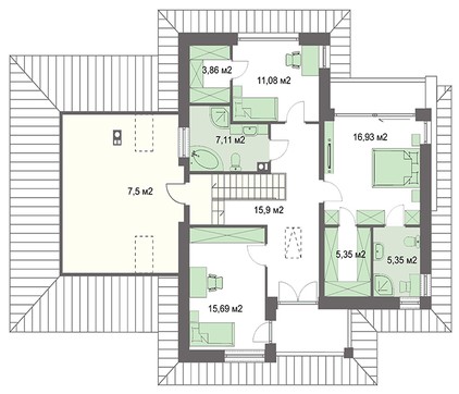
Modern two-story house in a classic style<br data-rich-text-line-break="true" />Número de plantas: 2<br data-rich-text-line-break="true" />Área total: 226.98 m2<br data-rich-text-line-break="true" />Área habitable: 142.95 m2<br data-rich-text-line-break="true" />Altura de la casa: 8.49 m<br data-rich-text-line-break="true" />Altura del techo: 2.80 m<br data-rich-text-line-break="true" />Ángulo del techo: 25 °<br data-rich-text-line-break="true" />Número de dormitorios: 3<br data-rich-text-line-break="true" />Número de baños: 3<br data-rich-text-line-break="true" />Garaje: Two-car garage<br data-rich-text-line-break="true" />Tamaño mínimo del terreno (largo): 21.10 m<br data-rich-text-line-break="true" />Tamaño mínimo del terreno (ancho): 26.10 m<br data-rich-text-line-break="true" />Materiales:<br data-rich-text-line-break="true" />Paredes: aerated concrete, ceramic blocks<br data-rich-text-line-break="true" />Overlap: monolithic overlap<br data-rich-text-line-break="true" />Roofing: ceramic tile, metal tile, cement-sand tile<br data-rich-text-line-break="true" />Foundation: monolithic tape

¿Te interesa este plano?

Contáctanos para obtener los planos completos, un presupuesto de construcción o adaptar este diseño a tu terreno y necesidades.

Solicitar más información

Galería de visualizaciones