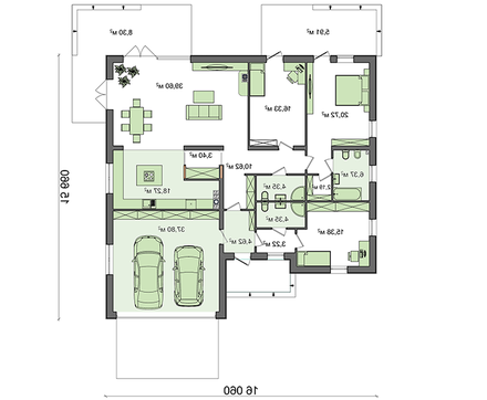
Proyecto de casa de una planta con varios baños

201 m² de área total / 2164 ft² 1 piso 3 dormitorios 3 baños
Proyecto de casa de una planta con varios baños
Click to view

Descripción

Proyecto de casa de una planta con varios baños<br data-rich-text-line-break="true" />Número de plantas: 1<br data-rich-text-line-break="true" />Área total: 201.43 m2<br data-rich-text-line-break="true" />Área habitable: 92.03 m2<br data-rich-text-line-break="true" />Altura de la casa: 6.76 m<br data-rich-text-line-break="true" />Altura de techo: 2.80 m<br data-rich-text-line-break="true" />Ángulo del techo: 25 °<br data-rich-text-line-break="true" />Área del techo: 301.45 m2<br data-rich-text-line-break="true" />Volumen: 492.00 m3<br data-rich-text-line-break="true" />Número de dormitorios: 3<br data-rich-text-line-break="true" />Número de baños: 3<br data-rich-text-line-break="true" />Garaje: Garaje para dos autos<br data-rich-text-line-break="true" />Tamaño mínimo del lote (largo): 24.00 m<br data-rich-text-line-break="true" />Tamaño mínimo del lote (ancho): 23.00 m<br data-rich-text-line-break="true" />Área construida: 283.18 m2<br data-rich-text-line-break="true" />Materiales:<br data-rich-text-line-break="true" />Muros: bloques de hormigón celular<br data-rich-text-line-break="true" />Techo: sobre vigas de madera<br data-rich-text-line-break="true" />Cubierta: teja metálica, teja cerámica, betún<br data-rich-text-line-break="true" />Cimentación: zapata corrida monolítica

¿Te interesa este plano?

Contáctanos para obtener los planos completos, un presupuesto de construcción o adaptar este diseño a tu terreno y necesidades.

Solicitar más información

Galería de visualizaciones