Proyecto de una casa moderna

227 m² de área total / 2443 ft² 1 piso 3 dormitorios 3 baños
Proyecto de una casa moderna
Click to view

Descripción

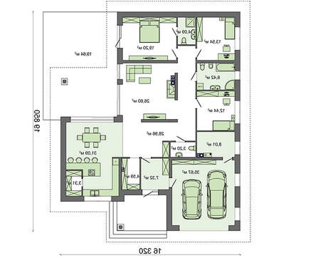
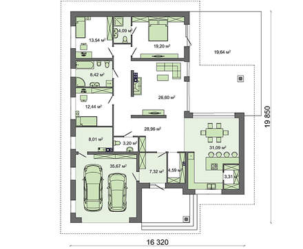
Proyecto de una casa moderna Número de plantas: 1 Área total: 226.89 m2 Área habitable: 71.78 m2 Altura de la casa: 6.62 m Altura de techo: 2.80 m Ángulo del techo: 25 ° Área del techo: 399.00 m2 Volumen: 935.00 m3 Número de dormitorios: 3 Número de baños: 3 Garaje: Garaje para dos autos Tamaño mínimo del lote (largo): 22.00 m Tamaño mínimo del lote (ancho): 25.00 m Área construida: 245.47 m2 Materiales: Muros: hormigón celular, bloques cerámicos Techo: sobre vigas de madera Cubierta: teja metálica, teja cerámica, betún Cimentación: zapata corrida monolítica

¿Te interesa este plano?

Contáctanos para obtener los planos completos, un presupuesto de construcción o adaptar este diseño a tu terreno y necesidades.

Solicitar más información

Galería de visualizaciones