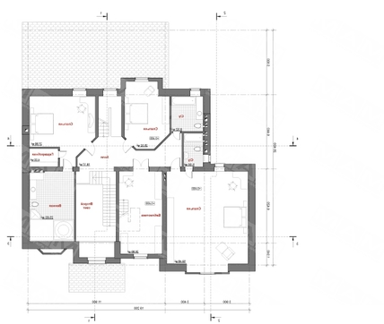
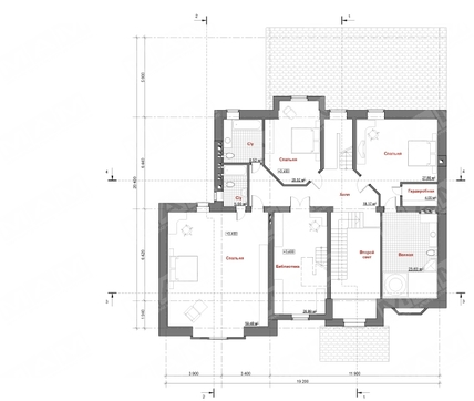
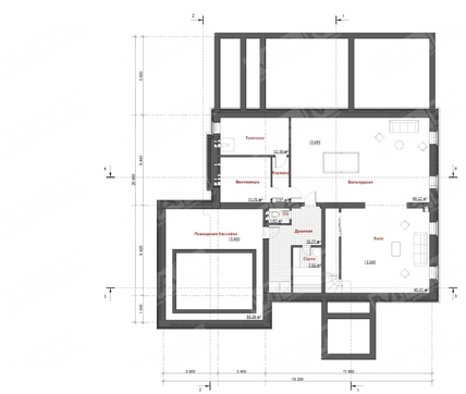
Proyecto de una enorme mansión elegante

815 m² de área total / 8773 ft² 3 pisos 5 dormitorios 6 baños
Proyecto de una enorme mansión elegante
Click to view

Descripción

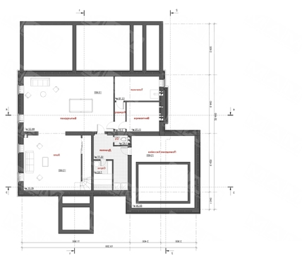
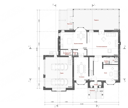
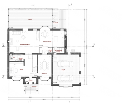
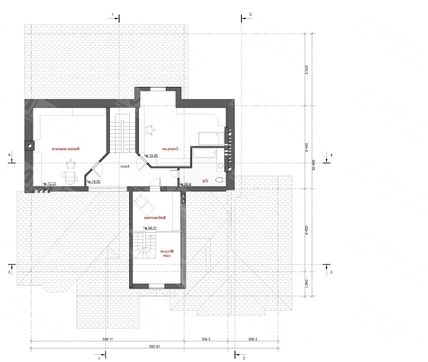
Proyecto de una enorme mansión elegante<br data-rich-text-line-break="true" />Número de plantas: 3<br data-rich-text-line-break="true" />Área total: 815.20 m2<br data-rich-text-line-break="true" />Altura de techo: 2.80 m<br data-rich-text-line-break="true" />Número de dormitorios: 5<br data-rich-text-line-break="true" />Número de baños: 6<br data-rich-text-line-break="true" />Garaje: Garaje para dos autos<br data-rich-text-line-break="true" />Tamaño mínimo del lote (largo): 25.00 m<br data-rich-text-line-break="true" />Tamaño mínimo del lote (ancho): 24.00 m<br data-rich-text-line-break="true" />Materiales:<br data-rich-text-line-break="true" />Muros: hormigón celular, bloques cerámicos<br data-rich-text-line-break="true" />Entrepisos: entrepiso monolítico<br data-rich-text-line-break="true" />Cubierta: teja metálica, teja cerámica, betún<br data-rich-text-line-break="true" />Cimentación: zapata corrida monolítica

¿Te interesa este plano?

Contáctanos para obtener los planos completos, un presupuesto de construcción o adaptar este diseño a tu terreno y necesidades.

Solicitar más información

Galería de visualizaciones