Proyecto de una casa luminosa de estilo mediterráneo

160 m² de área total / 1722 ft² 2 pisos 4 dormitorios 2 baños
Proyecto de una casa luminosa de estilo mediterráneo
Click to view

Descripción

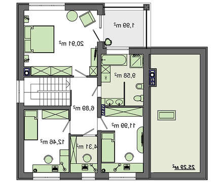
Proyecto de una casa luminosa de estilo mediterráneo<br data-rich-text-line-break="true" />Número de plantas: 2<br data-rich-text-line-break="true" />Área total: 160.15 m2<br data-rich-text-line-break="true" />Área habitable: 81.59 m2<br data-rich-text-line-break="true" />Altura de la casa: 8.96 m<br data-rich-text-line-break="true" />Altura de techo: 2.80 m<br data-rich-text-line-break="true" />Ángulo del techo: 25 °<br data-rich-text-line-break="true" />Área del techo: 205.00 m2<br data-rich-text-line-break="true" />Número de dormitorios: 4<br data-rich-text-line-break="true" />Número de baños: 2<br data-rich-text-line-break="true" />Garaje: Garaje para un auto<br data-rich-text-line-break="true" />Tamaño mínimo del lote (largo): 17.00 m<br data-rich-text-line-break="true" />Tamaño mínimo del lote (ancho): 16.00 m<br data-rich-text-line-break="true" />Área construida: 156.9 m2<br data-rich-text-line-break="true" />Materiales:<br data-rich-text-line-break="true" />Muros: bloques de hormigón celular<br data-rich-text-line-break="true" />Entrepisos: entrepiso monolítico<br data-rich-text-line-break="true" />Techo: tejas asfálticas<br data-rich-text-line-break="true" />Cimentación: losa monolítica

¿Te interesa este plano?

Contáctanos para obtener los planos completos, un presupuesto de construcción o adaptar este diseño a tu terreno y necesidades.

Solicitar más información

Galería de visualizaciones