Edificio residencial luminoso de dos plantas

251 m² de área total / 2702 ft² 2 pisos 5 dormitorios 3 baños
Edificio residencial luminoso de dos plantas
Click to view

Descripción

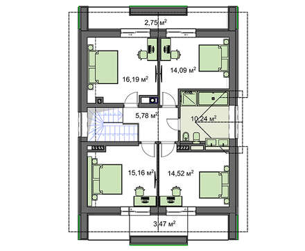
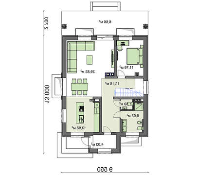
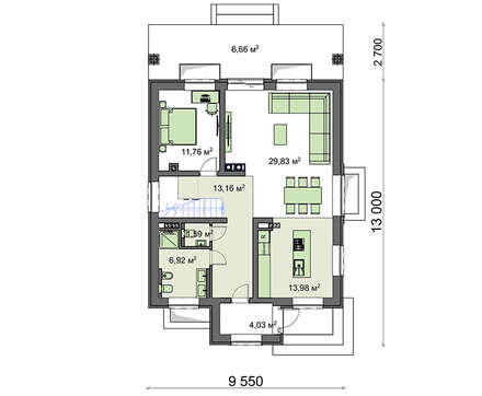
Edificio residencial luminoso de dos plantas<br data-rich-text-line-break="true" />Número de plantas: 3<br data-rich-text-line-break="true" />Área total: 250.70 m2<br data-rich-text-line-break="true" />Área habitable: 101.55 m2<br data-rich-text-line-break="true" />Altura de la casa: 9.60 m<br data-rich-text-line-break="true" />Altura de techo: 2.80 m<br data-rich-text-line-break="true" />Ángulo del techo: 42 °<br data-rich-text-line-break="true" />Área del techo: 191.00 m2<br data-rich-text-line-break="true" />Volumen: 1060.00 m3<br data-rich-text-line-break="true" />Número de dormitorios: 5<br data-rich-text-line-break="true" />Número de baños: 3<br data-rich-text-line-break="true" />Tamaño mínimo del lote (largo): 24.00 m<br data-rich-text-line-break="true" />Tamaño mínimo del lote (ancho): 19.00 m<br data-rich-text-line-break="true" />Área construida: 155.8 m2<br data-rich-text-line-break="true" />Área de la planta baja: 86.49 m2<br data-rich-text-line-break="true" />Materiales:<br data-rich-text-line-break="true" />Muros: bloques de hormigón celular<br data-rich-text-line-break="true" />Entrepisos: entrepiso monolítico<br data-rich-text-line-break="true" />Cubierta: teja metálica, teja cerámica, betún<br data-rich-text-line-break="true" />Cimentación: zapata corrida monolítica

¿Te interesa este plano?

Contáctanos para obtener los planos completos, un presupuesto de construcción o adaptar este diseño a tu terreno y necesidades.

Solicitar más información

Galería de visualizaciones