Proyecto de casa compacta con terraza

103 m² de área total / 1109 ft² 1 piso 2 dormitorios 1 baño
Proyecto de casa compacta con terraza
Click to view

Descripción

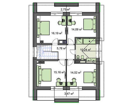
Proyecto de casa compacta con terraza Número de plantas: 1 Área total: 103.17 m2 Área habitable: 63.01 m2 Altura de la casa: 6.15 m Altura de techo: 2.80 m Ángulo del techo: 30 ° Área del techo: 213.50 m2 Volumen: 264.00 m3 Número de dormitorios: 2 Número de baños: 1 Tamaño mínimo del lote (largo): 20.00 m Tamaño mínimo del lote (ancho): 23.50 m Área construida: 159.56 m2 Materiales: Muros: bloques de hormigón celular Techo: sobre vigas de madera Cubierta: teja metálica, teja cerámica, betún Cimentación: zapata corrida monolítica

¿Te interesa este plano?

Contáctanos para obtener los planos completos, un presupuesto de construcción o adaptar este diseño a tu terreno y necesidades.

Solicitar más información

Galería de visualizaciones