Proyecto de una casa de dos plantas con acristalamiento panorámico

130 m² de área total / 1399 ft² 2 pisos 3 dormitorios 3 baños
Proyecto de una casa de dos plantas con acristalamiento panorámico
Click to view

Descripción

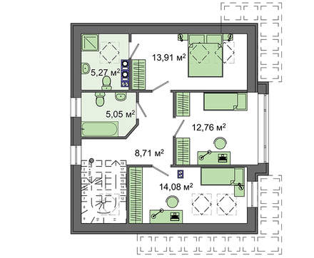
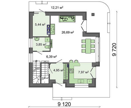
Proyecto de una casa de dos plantas con acristalamiento panorámico<br data-rich-text-line-break="true" />Número de plantas: 2<br data-rich-text-line-break="true" />Área total: 129.87 m2<br data-rich-text-line-break="true" />Área habitable: 67.44 m2<br data-rich-text-line-break="true" />Altura de la casa: 9.01 m<br data-rich-text-line-break="true" />Altura de techo: 2.80 m<br data-rich-text-line-break="true" />Ángulo del techo: 34 °<br data-rich-text-line-break="true" />Área del techo: 134.50 m2<br data-rich-text-line-break="true" />Volumen: 366.00 m3<br data-rich-text-line-break="true" />Número de dormitorios: 3<br data-rich-text-line-break="true" />Número de baños: 3<br data-rich-text-line-break="true" />Tamaño mínimo del lote (largo): 16.00 m<br data-rich-text-line-break="true" />Tamaño mínimo del lote (ancho): 17.00 m<br data-rich-text-line-break="true" />Área construida: 127.7 m2<br data-rich-text-line-break="true" />Materiales:<br data-rich-text-line-break="true" />Muros: hormigón celular<br data-rich-text-line-break="true" />Entrepisos: entrepiso monolítico<br data-rich-text-line-break="true" />Cubierta: teja metálica, teja cerámica, betún<br data-rich-text-line-break="true" />Cimentación: zapata corrida monolítica

¿Te interesa este plano?

Contáctanos para obtener los planos completos, un presupuesto de construcción o adaptar este diseño a tu terreno y necesidades.

Solicitar más información

Galería de visualizaciones