Edificio residencial de dos plantas con amplias verandas

370 m² de área total / 3983 ft² 2 pisos 3 dormitorios 3 baños
Edificio residencial de dos plantas con amplias verandas
Click to view

Descripción

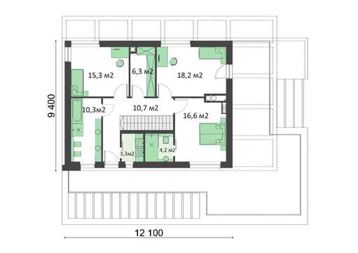
Edificio residencial de dos plantas con amplias verandas<br data-rich-text-line-break="true" />Número de plantas: 2<br data-rich-text-line-break="true" />Área total: 370.49 m2<br data-rich-text-line-break="true" />Área habitable: 186.56 m2<br data-rich-text-line-break="true" />Altura de la casa: 9.09 m<br data-rich-text-line-break="true" />Altura de techo: 2.80 m<br data-rich-text-line-break="true" />Ángulo del techo: 30 °<br data-rich-text-line-break="true" />Área del techo: 111.00 m2<br data-rich-text-line-break="true" />Volumen: 1091.00 m3<br data-rich-text-line-break="true" />Número de dormitorios: 3<br data-rich-text-line-break="true" />Número de baños: 3<br data-rich-text-line-break="true" />Garaje: Garaje para dos autos<br data-rich-text-line-break="true" />Tamaño mínimo del lote (largo): 18.50 m<br data-rich-text-line-break="true" />Tamaño mínimo del lote (ancho): 23.00 m<br data-rich-text-line-break="true" />Área construida: 182.96 m2<br data-rich-text-line-break="true" />Materiales:<br data-rich-text-line-break="true" />Muros: hormigón celular, bloques cerámicos<br data-rich-text-line-break="true" />Entrepisos: entrepiso monolítico<br data-rich-text-line-break="true" />Cubierta: teja cerámica, teja metálica, teja de cemento-arena<br data-rich-text-line-break="true" />Cimentación: zapata corrida monolítica

¿Te interesa este plano?

Contáctanos para obtener los planos completos, un presupuesto de construcción o adaptar este diseño a tu terreno y necesidades.

Solicitar más información

Galería de visualizaciones