Proyecto de una casa de campo europea con contraventanas

85 m² de área total / 915 ft² 1 piso 2 dormitorios 1 baño
Proyecto de una casa de campo europea con contraventanas
Click to view

Descripción

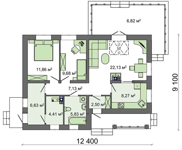
Proyecto de una casa de campo europea con contraventanas Número de plantas: 1 Área total: 85.26 m2 Área habitable: 43.67 m2 Altura de la casa: 6.80 m Altura de techo: 2.80 m Ángulo del techo: 30 ° Área del techo: 164.10 m2 Número de dormitorios: 2 Número de baños: 1 Tamaño mínimo del lote (largo): 20.50 m Tamaño mínimo del lote (ancho): 18.50 m Área construida: 103.6 m2 Materiales: Muros: hormigón celular, bloques cerámicos Techo: sobre vigas de madera Cubierta: teja metálica, teja cerámica, betún Cimentación: zapata corrida monolítica

¿Te interesa este plano?

Contáctanos para obtener los planos completos, un presupuesto de construcción o adaptar este diseño a tu terreno y necesidades.

Solicitar más información

Galería de visualizaciones