Edificio residencial inusual construido en ladrillo

195 m² de área total / 2099 ft² 1 piso 3 dormitorios 2 baños
Edificio residencial inusual construido en ladrillo
Click to view

Descripción

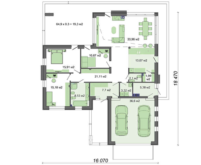
Edificio residencial inusual construido en ladrillo Número de plantas: 1 Área total: 194.82 m2 Área habitable: 75.72 m2 Altura de la casa: 7.72 m Altura de techo: 2.80 m Ángulo del techo: 35 ° Área del techo: 305.00 m2 Volumen: 1012.00 m3 Número de dormitorios: 3 Número de baños: 2 Garaje: Garaje para dos autos Tamaño mínimo del lote (largo): 23.80 m Tamaño mínimo del lote (ancho): 26.40 m Área construida: 214.22 m2 Materiales: Muros: hormigón celular, bloques cerámicos Techo: sobre vigas de madera Cubierta: teja cerámica, teja metálica, teja de cemento-arena Cimentación: zapata corrida monolítica

¿Te interesa este plano?

Contáctanos para obtener los planos completos, un presupuesto de construcción o adaptar este diseño a tu terreno y necesidades.

Solicitar más información

Galería de visualizaciones