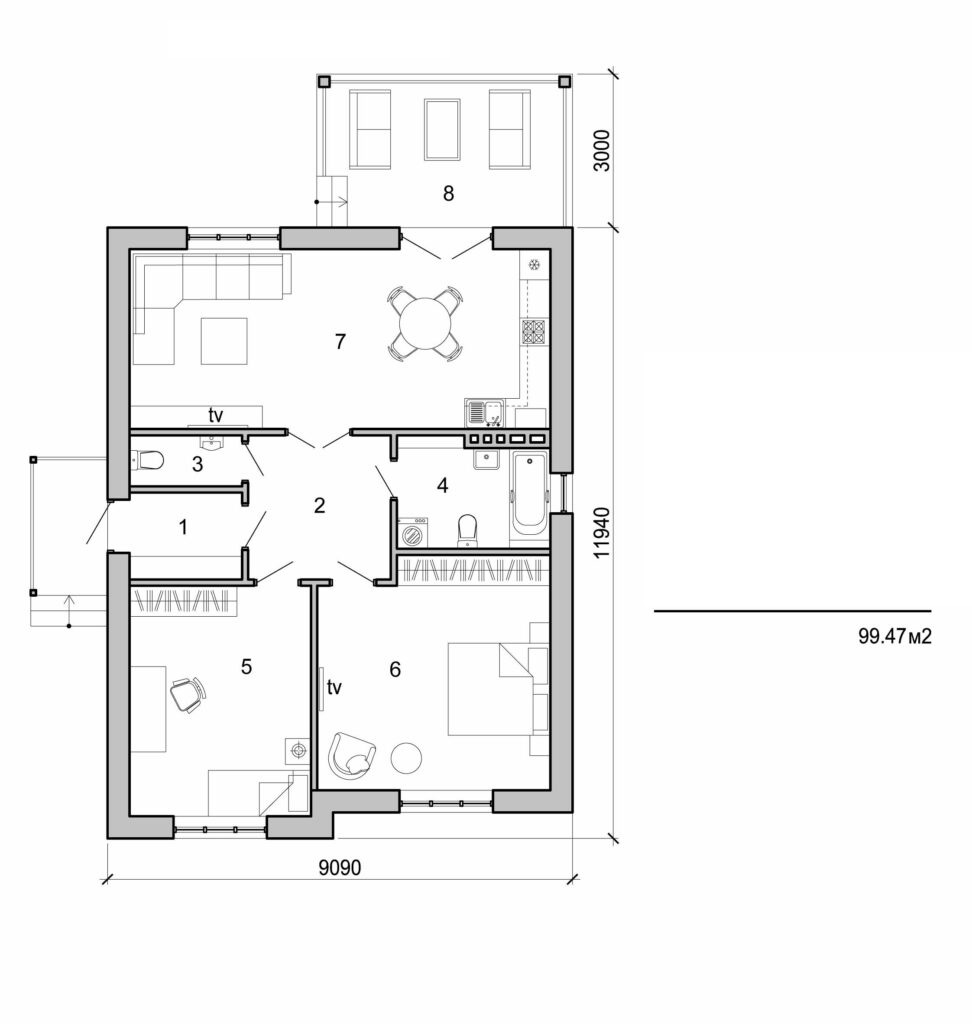
Casa de una planta

211 m² de área total / 2271 ft² 1 piso dormitorios
Casa de una planta
Click to view

¿Te interesa este plano?

Contáctanos para obtener los planos completos, un presupuesto de construcción o adaptar este diseño a tu terreno y necesidades.

Solicitar más información

Galería de visualizaciones