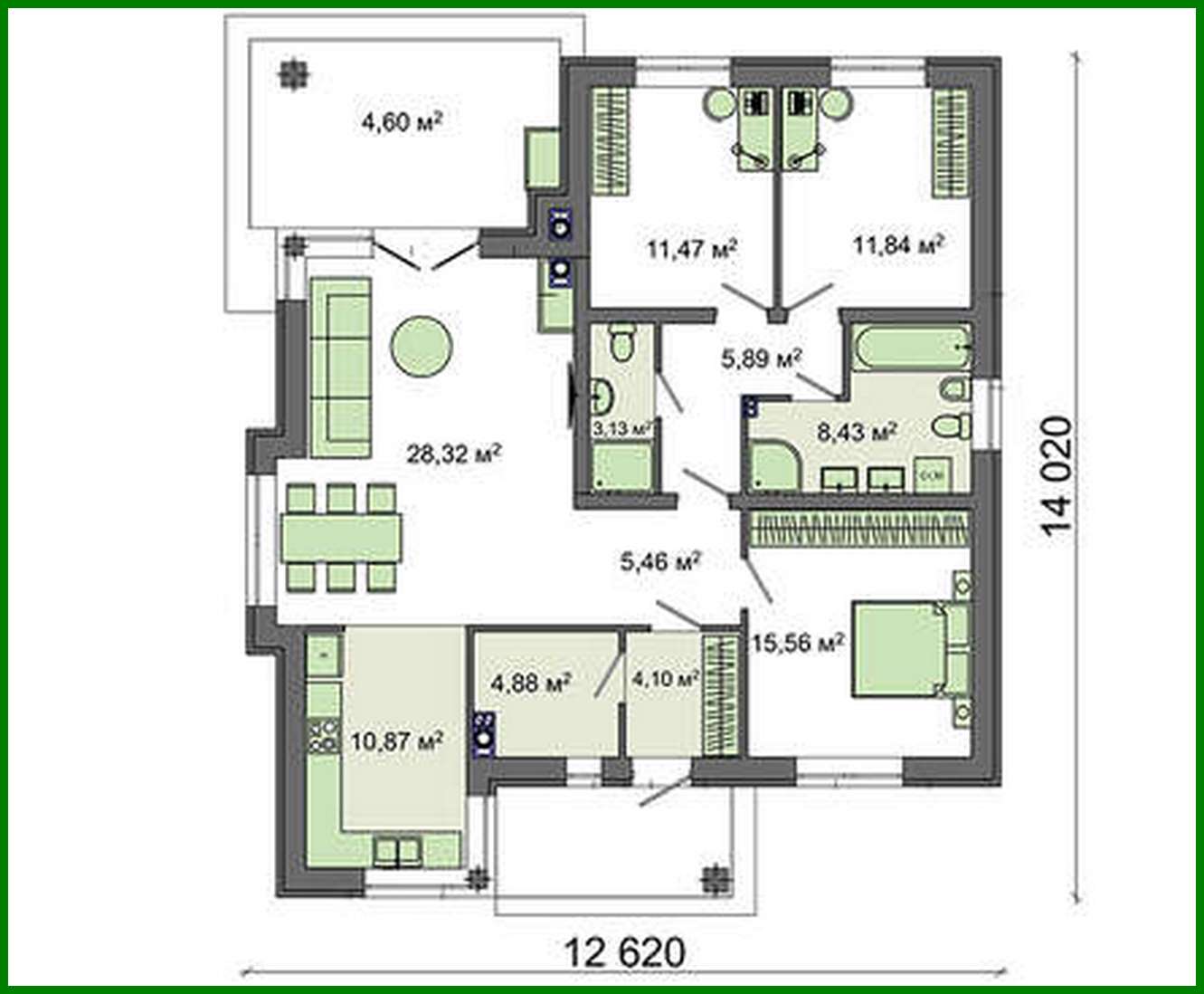
Casa elegante de una planta con tres dormitorios

115 m² de área total / 1238 ft² 1 piso 3 dormitorios 2 baños
Casa elegante de una planta con tres dormitorios
Click to view

Descripción

Elegant one-story house with three bedrooms<br data-rich-text-line-break="true" />Número de plantas: 1<br data-rich-text-line-break="true" />Área total: 114.55 m2<br data-rich-text-line-break="true" />Área habitable: 67.19 m2<br data-rich-text-line-break="true" />Altura de la casa: 6.74 m<br data-rich-text-line-break="true" />Altura del techo: 2.80 m<br data-rich-text-line-break="true" />Ángulo del techo: 25 °<br data-rich-text-line-break="true" />Área del techo: 236.00 m2<br data-rich-text-line-break="true" />Volumen: 328.90 m3<br data-rich-text-line-break="true" />Número de dormitorios: 3<br data-rich-text-line-break="true" />Número de baños: 2<br data-rich-text-line-break="true" />Tamaño mínimo del terreno (largo): 21.00 m<br data-rich-text-line-break="true" />Tamaño mínimo del terreno (ancho): 22.00 m<br data-rich-text-line-break="true" />Área construida: 174.5 m2<br data-rich-text-line-break="true" />Materiales:<br data-rich-text-line-break="true" />Paredes: aerated concrete blocks<br data-rich-text-line-break="true" />Techo: on wooden beams<br data-rich-text-line-break="true" />Roofing: metal tile, ceramic tile, bitumen<br data-rich-text-line-break="true" />Foundation: monolithic tape

¿Te interesa este plano?

Contáctanos para obtener los planos completos, un presupuesto de construcción o adaptar este diseño a tu terreno y necesidades.

Solicitar más información

Galería de visualizaciones