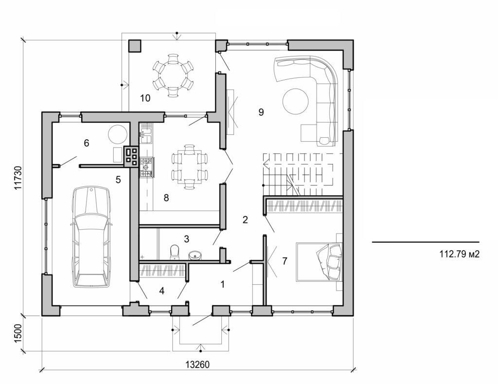
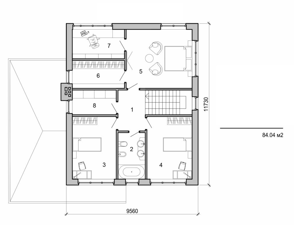
Casa de dos plantas
197 m² de área total
/ 2120 ft²
2 pisos
dormitorios
Click to view
‹
›
¿Te interesa este plano?
Contáctanos para obtener los planos completos, un presupuesto de construcción o adaptar este diseño a tu terreno y necesidades.
Solicitar más informaciónGalería de visualizaciones