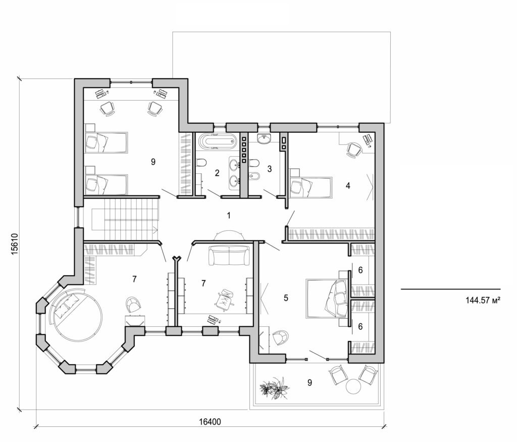
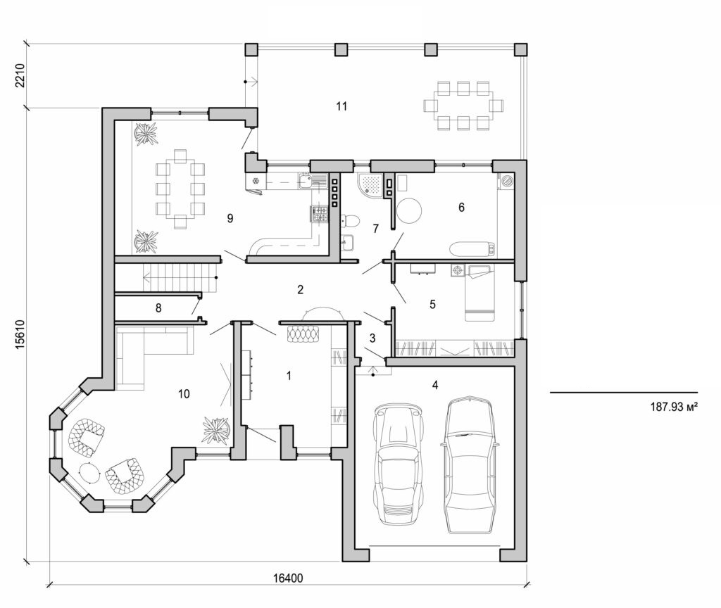
Mansión de dos plantas

332 m² de área total / 3574 ft² 2 pisos dormitorios
Mansión de dos plantas
Click to view

¿Te interesa este plano?

Contáctanos para obtener los planos completos, un presupuesto de construcción o adaptar este diseño a tu terreno y necesidades.

Solicitar más información

Galería de visualizaciones