Proyecto de una casa moderna con terraza sobre el garaje

226 m² de área total / 2433 ft² 2 pisos 4 dormitorios 3 baños
Proyecto de una casa moderna con terraza sobre el garaje
Click to view

Descripción

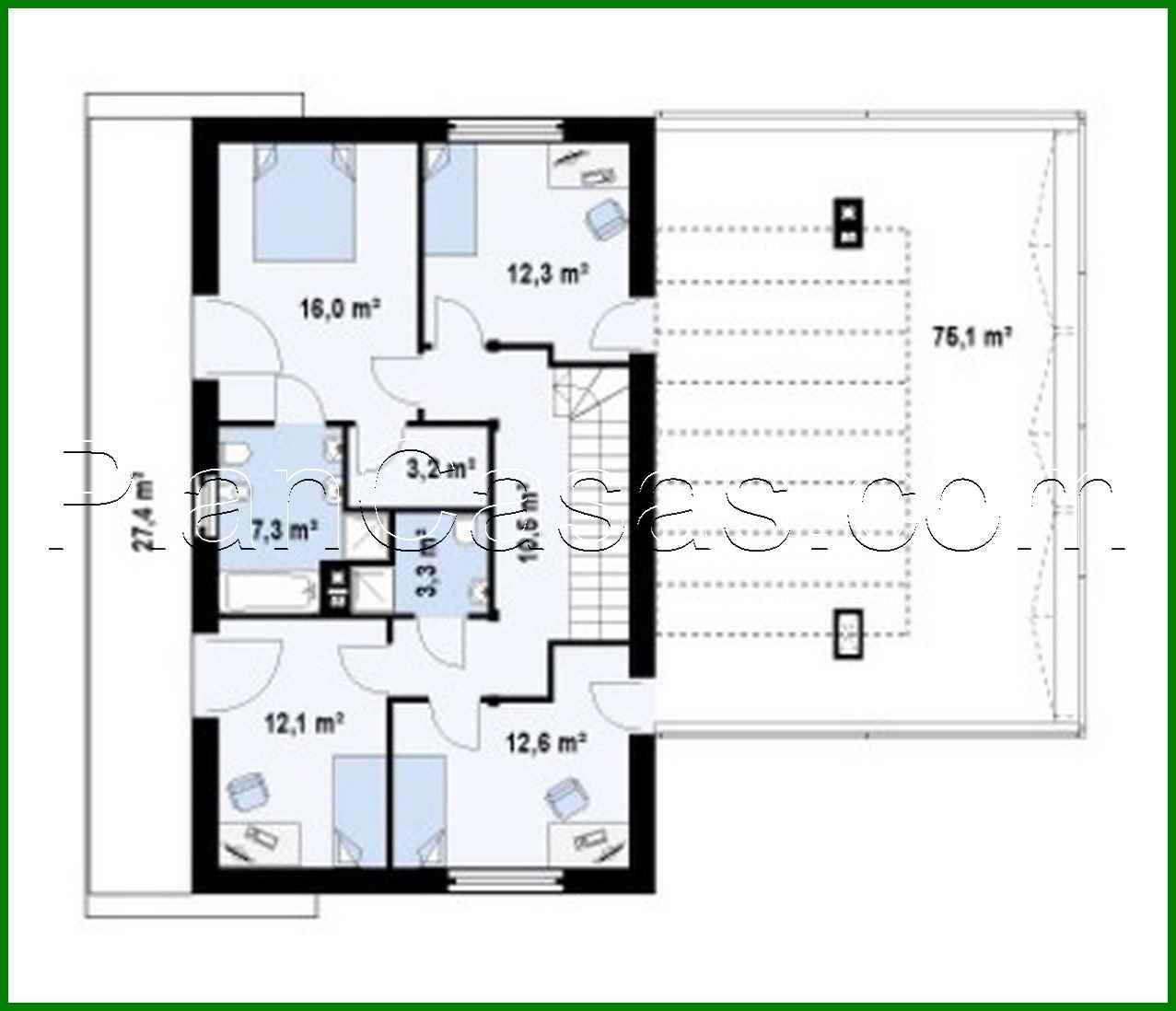
Project of a modern house with a terrace above the garage Número de plantas: 2 Área total: 226.00 m2 Área habitable: 178.00 m2 Altura de la casa: 7.00 m Altura del techo: 2.80 m Ángulo del techo: 6 ° Área del techo: 99.00 m2 Volumen: 677.00 m3 Número de dormitorios: 4 Número de baños: 3 Garaje: Garage for one car Tamaño mínimo del terreno (largo): 22.00 m Tamaño mínimo del terreno (ancho): 21.00 m Materiales: Paredes: aerated concrete, ceramic blocks Overlap: monolithic overlap Roofing: PVC membrane Foundation: monolithic tape band

¿Te interesa este plano?

Contáctanos para obtener los planos completos, un presupuesto de construcción o adaptar este diseño a tu terreno y necesidades.

Solicitar más información

Galería de visualizaciones