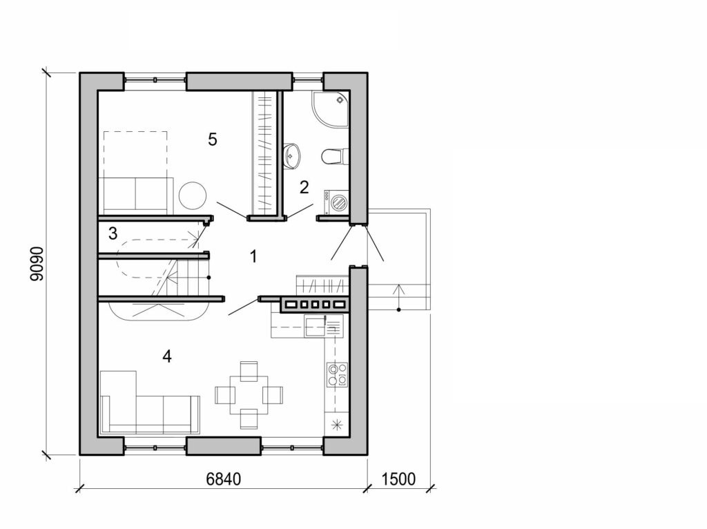
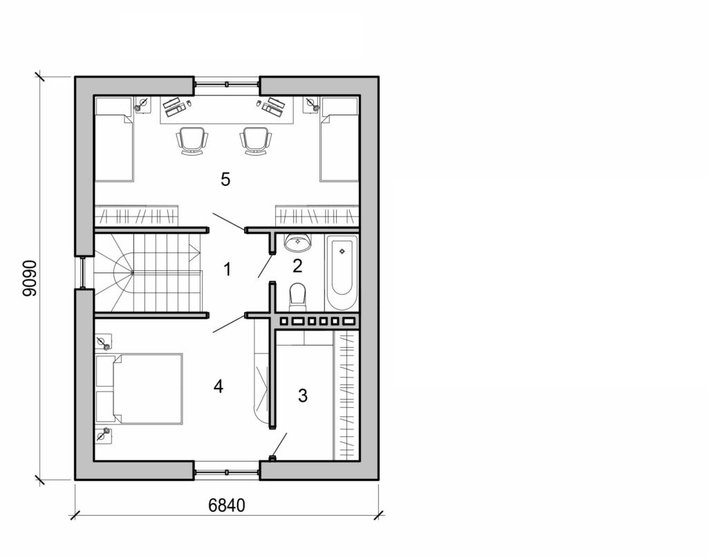
Casa sencilla de 2 plantas

122 m² de área total / 1313 ft² 2 pisos dormitorios
Casa sencilla de 2 plantas
Click to view

Descripción

10. Simple 2 storey house

¿Te interesa este plano?

Contáctanos para obtener los planos completos, un presupuesto de construcción o adaptar este diseño a tu terreno y necesidades.

Solicitar más información

Galería de visualizaciones